白井 中古住宅 4LDK
【 中古 一戸建て 】4台駐車可能、4LDK中古住宅!!
| 最寄駅 | 所在地 | 面積 | 築年月 | 価格 | 間取り |
|---|---|---|---|---|---|
小室駅 車 9分 | 白井市白井54-1 | 建物/77㎡ | 2018年02月 | 2,880 万円 | 4 LDK |
駐車場広々、4台駐車可能な築8年の4LDK中古住宅!
価格:2,880万円
住所:千葉県白井市白井54-1
北総線「小室駅」より約3.3km(車で9分、徒歩29分)
《物件概要》
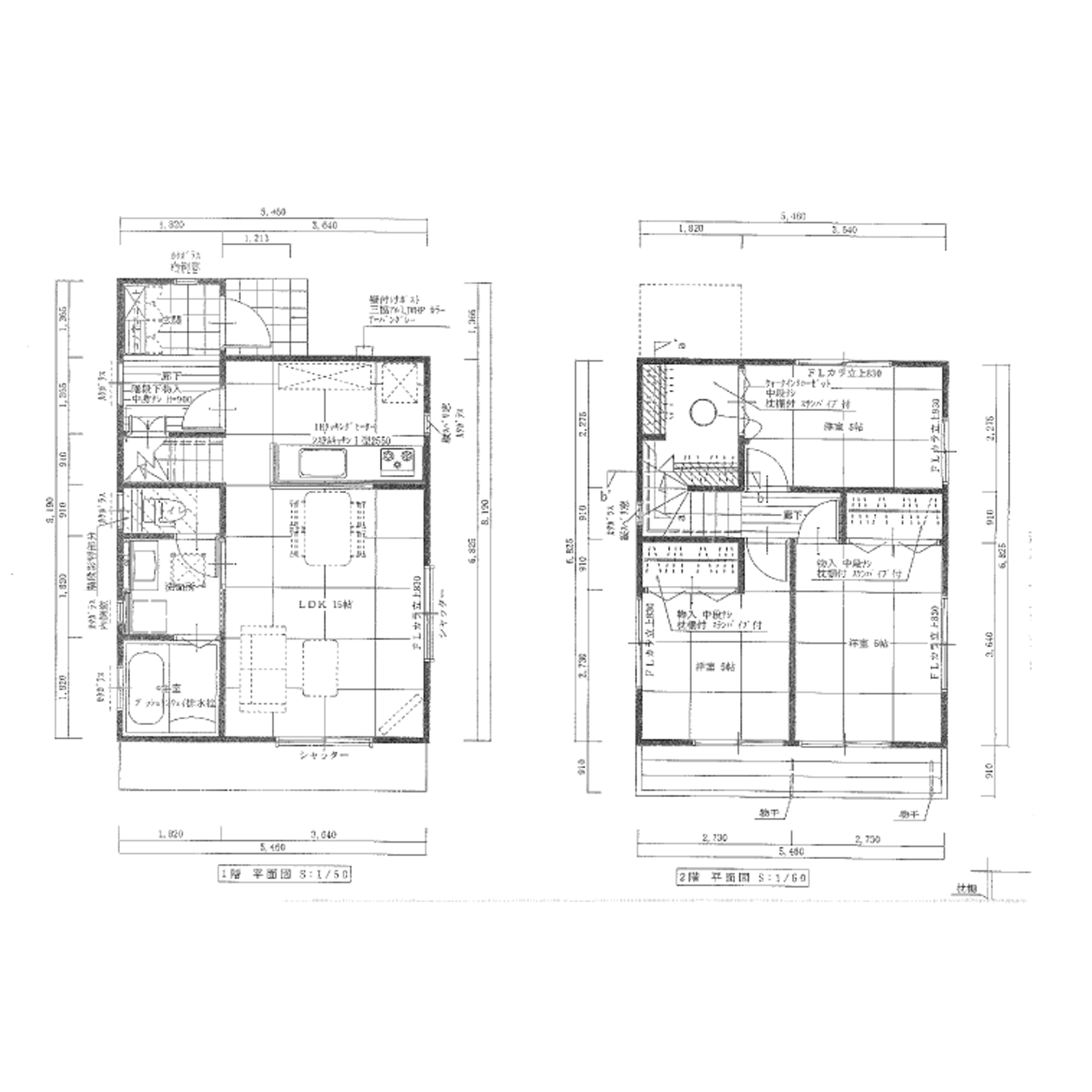
面積:土地/187.743平米(約57坪) 建物/2F:37.26平米 1F:39.74平米
建蔽率:60%
容積率:200%
土地権利:所有権
地目:宅地
都市計画:市街化区域
用途地域:第1種低層
現況:空き家
接道:2方向
物件写真・間取り
物件概要
| 物件名 | 白井 中古住宅 4LDK |
|---|
| 交通機関 | 小室駅 車 9分 小室駅 徒歩 29分 |
|---|
| 所在地 | 白井市白井54-1 |
|---|
| 価格 | 2,880 万円 |
|---|
| 間取り | 4 LDK |
|---|
| 土地権利 | 所有権 |
|---|
| 建物面積 | 77㎡ |
|---|
| 建物構造 | 木造 |
|---|
| 階 / 階数 | 2階建 |
|---|
| 築年月 | 2018年02月 |
|---|
| 都市計画 | 市街化区域 |
|---|
| 用途地域 | 第一種低層住居専用地域 |
|---|
| 建ぺい率 | 60% |
|---|
| 容積率 | 200% |
|---|
| 駐車場 | 有 |
|---|
| 現況 | 空 |
|---|
| 引渡し | 即時 |
|---|
| 設備 | 上下水道、LPG |
|---|
| 備考 | ◆再建築可 ◆建築確認 平成29年5月 ◆司法書士売主指定 |
|---|
| 情報登録日 | 2026年02月05日 |
|---|
| 情報更新日 | 2026年02月05日 |
|---|






